E-PORTFOLIO
Measured Drawing
Project 1: Sketchbook









In this project,we are required to produce a minimum of 10 sketches that we should draw on site during our site visit to Penang.We have to outline and capture the unique characteristics of the architectural structures and additionally the quick setting of the site.
Reflection:
Through this project,we get to develop more on our drawing skill and also help us to understand more about unique architectural structures of each building.We learnt to observe more of the buildings surrounding and also capture them in our own perspective and view.It was a great experience in Penang and able to get to understand the meaning and purpose of the old shophouse.

Interpersonal skills

Thinking and problem solving skills.

Lifelong learning
Project 2: documentary video & report
In the second project,we are required to produce a documentary video and report about our selected building.Basically, the report will elaborate on the importance of the building measured from various aspects such as architectural, historical and cultural. In this report, students are required to elaborate the exploration of architecture and the building significance, highlighting how the two support the inhabitation of the building. Students are required to prepare a presentation, photo book and a video about their site.Above video is our documentary video about the 44 king street old shophouse.
Reflection:
Through this project,I've learnt to document my studies into proper report and videos in order to show and present the whole significance of the building.

Discipline specific knowledge

Lifelong learning

Thinking & problem solving skills
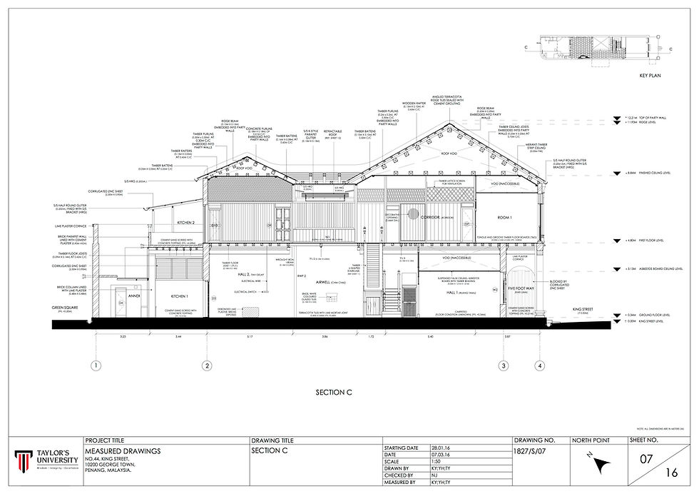
Project 3: Cad drawing & model









CAD Drawings





